売アパート
成約済み
おかげ様で成約済みです!
情報提供日:2024年08月9日

駅まで平坦、徒歩9分の売りアパート。収益物件です。
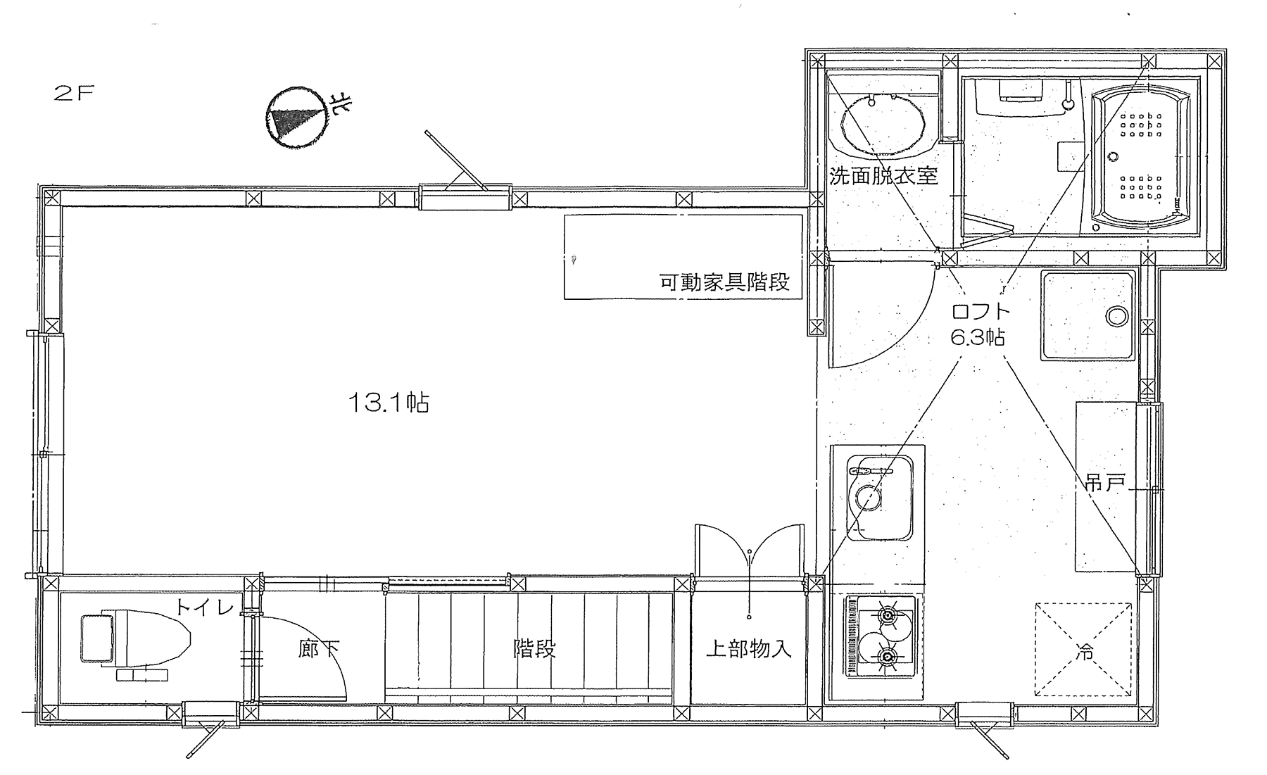
広々1K + ロフト付き ×2戸
24時間換気システム,国道沿いに面する,B·T別,追焚機能,シャワー,収納 スペース,室内洗濯機置場,給湯,都市ガス,ロフト,複層ガラス,Low-Eガラス, エアコン,CATV,防犯カメラ,宅配BOX
物件詳細情報
| 価格 | 成約済み |
| 住所 | 横浜市南区 |
| 交通 | |
| 間取り | 1K+ロフトx2戸 |
| 土地面積 | 実測50.36㎡ |
| 建物面積 | 62.54㎡ |
| 完成時期(築年月) | 2024年08月 |
| 用途地域など | 市街化区域 |
| 土地権利など | 所有権 |
| 設備など | B·T別,追焚機能,シャワー,収納スペース,室内洗濯機置場、給湯,都市ガス,ロフト,複層ガラス,Low-Eガラス,エアコン, CATV ,防犯カメラ,宅配BOX |
| 取引形態 | 売主 |
| 備考 | 予定利回りに管理費は含まれておりません。 住宅性能評価(劣化等級2級)司法書士売主指定 利回り 6.16% 年IHI予定貨料収入 2,556,000 00万円 利用駅] J R横須賀線保土ケ谷徒歩15分 利用駅2 :横浜市プルーライン蒔田徒歩23分 |
【売アパート】についてのお問い合わせはこちらからどうぞ。
特選売買物件

南(5m道路)西角地につき、日当たり良好!地下車庫のため、お庭を広くできました。
2 階建て4L DK 庭付!!*駅からほとんど平坦!!床暖房(マット3枚)付ZEH 水準省エネ住宅 ローン控除優遇有
2 階建て4L DK 庭付!!*駅からほとんど平坦!!床暖房(マット3枚)付ZEH 水準省エネ住宅 ローン控除優遇有
住所:
交通:
販売価格:5,930万円
交通:
販売価格:成約済み
交通:
販売価格:成約済み
交通:
販売価格:成約済み








